- Главная
- Проекты домов, бань
- Проекты бань
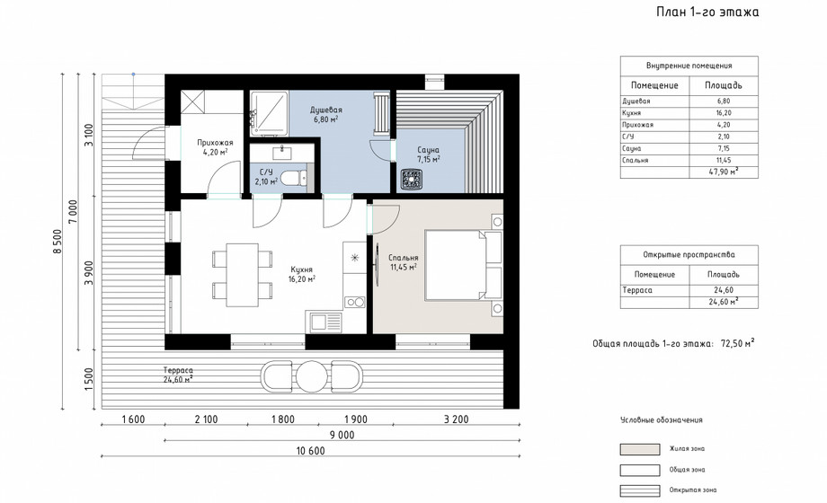
- БКН-707 Банный комплекс с террасой 9*11 м.
парилка, кухня, одна спальня, душевая,сан-узел.:
В стоимость базового строительства входит работы и материалы : АР (архитектурный проект) фундамент свайно-ростверковый (геология ???) , ввод и разводка канализации, водопровод (гильза) , электроэнергия (гильза) , наружные стены из газосиликатного блока 300 мм, перегородки 120 м, крыша монолитная железобетонная 200 мм с утеплением 200 мм пеноплекс- парапет- гидроизоляция- стяжка с разуклонкой
При строительстве с отделкой под ключ предлагаем визуализацию всех помещений.
Визуализация помогает заказчику определиться, подходит ли ему этот вид отделки интерьера или экстерьера или это требует доработки. Это позволит сэкономить время на переделки в строительстве, так как модель проще переделать, чем ремонт.
Гарантия на выполненные работы 48 месяцев. Предлагаем строительство с отделкой под ключ.
полный комплекс строительных услуг
Создаем проект дома, либо выбираете из готовых
Проводим геодезию участка
Возводим фундамент
Возводим стены и перекрытия
Кровельные работы
Фасадные работы
Инженерные работы
Получистовая отделка
Чистовая отделка
дачных домов, коттеджей , бань,
в любой ценовой категории,
в любой точке Республики Беларусь!
утвердим проект, который вам понравится
и построим все под ключ.


