Выполним разработку отдельных конструктивных решений, если Вам необходимо дополнить свой проект разделом по строительной части.
Расчет и конструирование фундаментов. Проектирование фундаментов. Ленточные, свайные, плитные фундаменты.
Крыша. Проектирование и расчет. Скатная и плоская кровля конструктивные решения. Стропильная система.
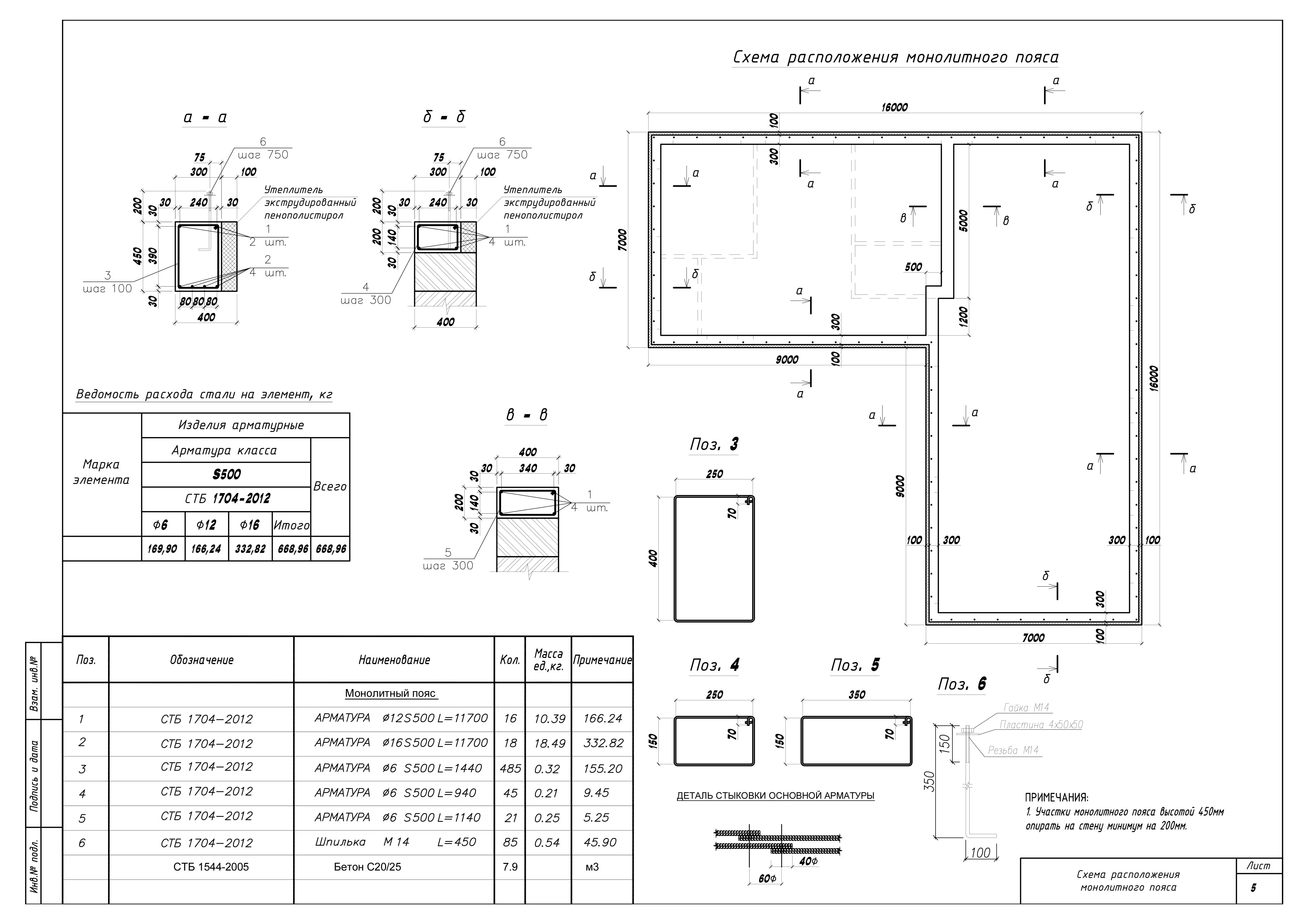
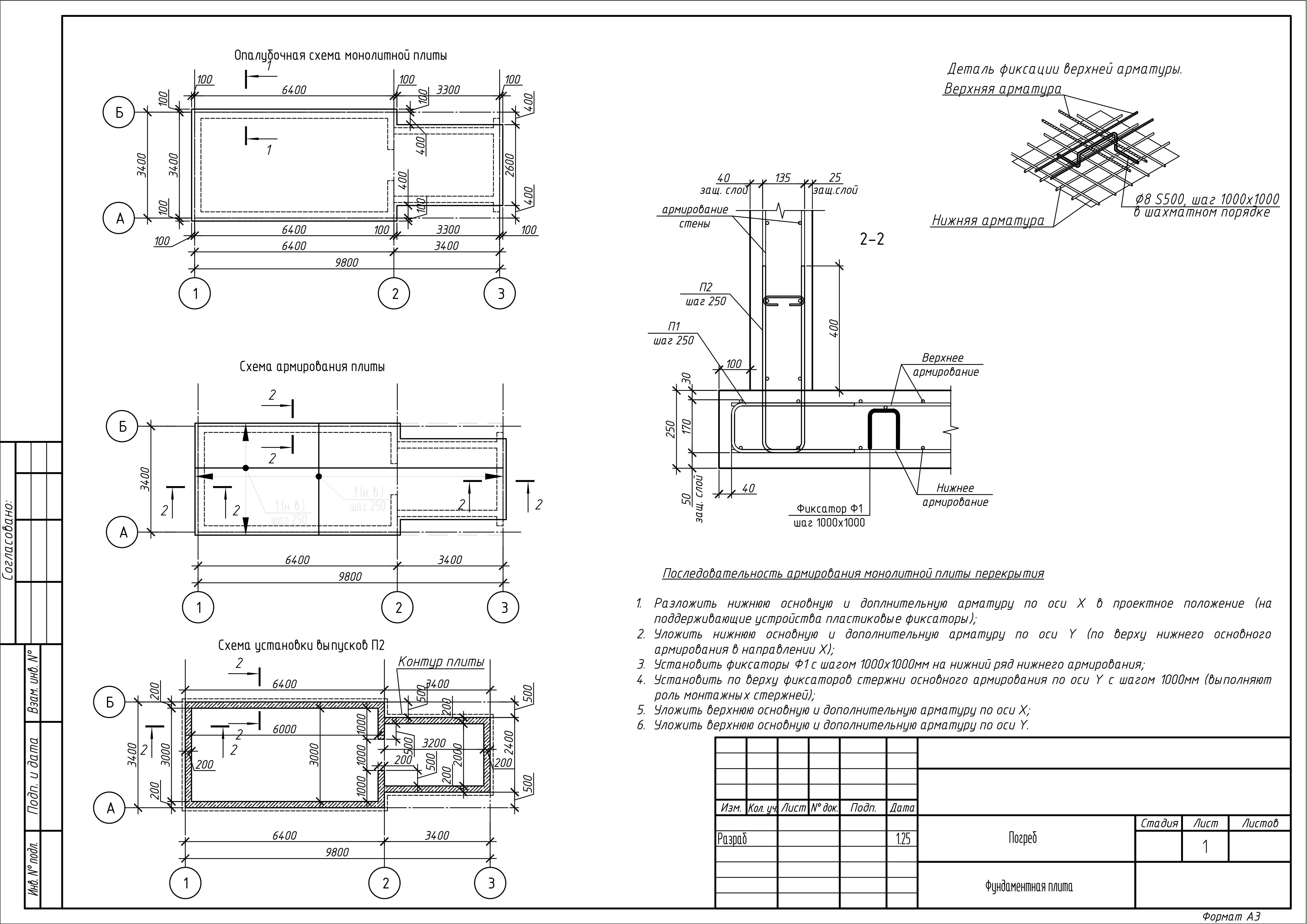
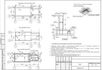
Монолитное перекрытие. Расчет. Проект (рабочие чертежи и спецификации).
Деревянные перекрытия. Расчет. Проект (рабочие чертежи и спецификации). Расчет деревянной фермы.
Замена фундамента. Расчет на нагрузки.
Выполним инженерно-геологические изыскания
Архитектурно-строительный проект (АС) включает в себя два основных раздела: Архитектурный (АР) и Конструктивный (КР). Это идеальный набор рабочих чертежей, который полностью удовлетворяет требования для получения разрешения на строительство и осуществления строительных работ. Особенности комплектации чертежей для каркасных домов и домов из бруса могут варьироваться, что отражается в примерах проектов таких конструкций.
Проектная документация предоставляется в виде печатных альбомов формата А3, с двумя экземплярами каждого документа.
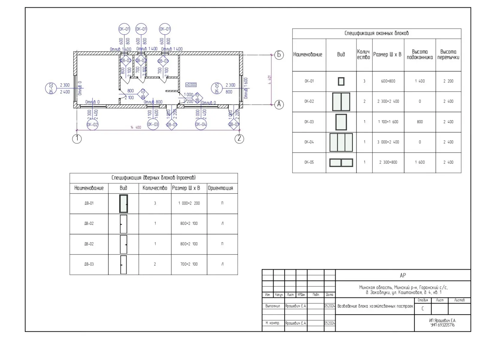
Архитектурный проект
Архитектурный проект дома позволяет представить, как будет выглядеть ваш будущий дом на участке, включая его размеры, этажность, планировку и фасады. В проект включены все необходимые чертежи для согласования в местном органе власти:
- Размещение на земельном участке;
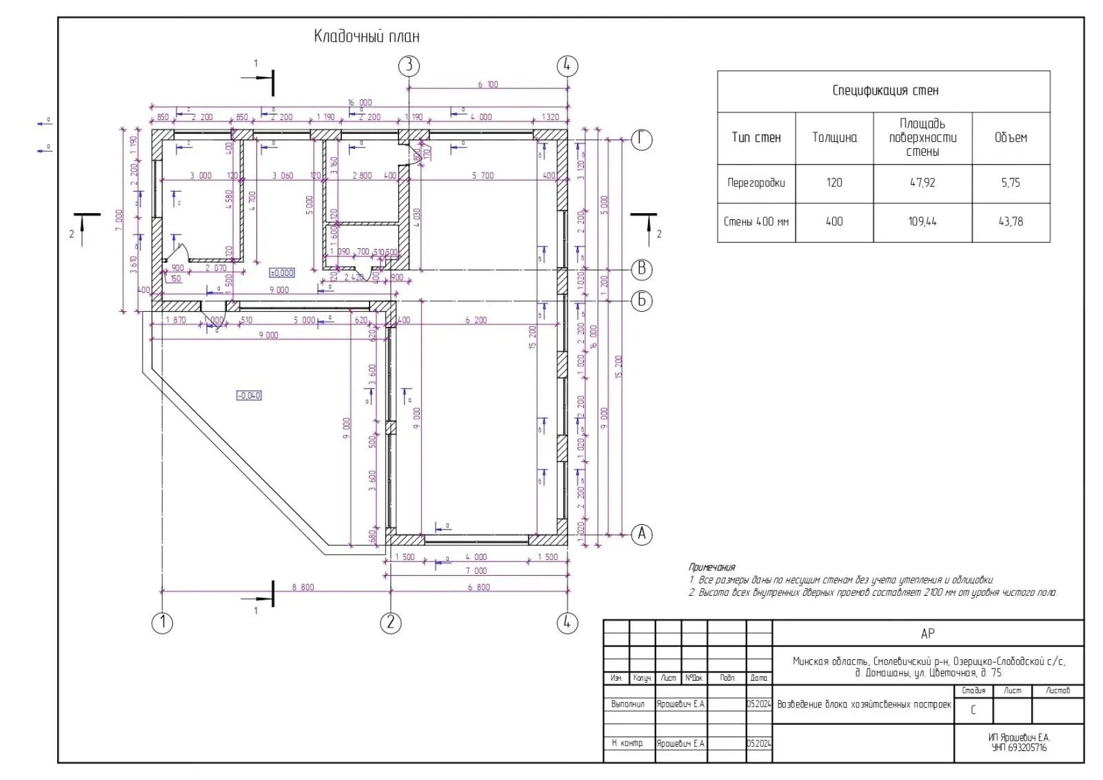
- План фундамента;
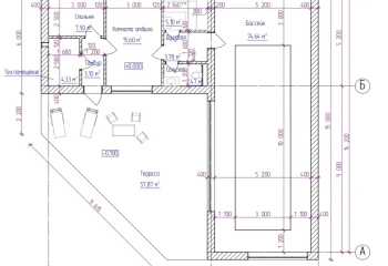
- Планы этажей;
- Разрезы;
- План кровли;
- Фасады с четырех сторон;
- 3D-визуализация (несколько видов).
Сроки разработки такого проекта составляют от 2 недель.
Существует два типа архитектурных проектов, которые мы можем разработать:
Типовой проект
Типовой проект создается, когда заказчик предоставляет готовое планировочное решение, включая информацию о материалах, площади комнат и их размещении. Мы адаптируем его к вашему участку и вносим незначительные изменения.
Стоимость такого проекта начинается от 10 BYN за 1 м².
Индивидуальный проект
Индивидуальный проект разрабатывается с нуля совместно с заказчиком, который имеет общее представление о площади дома и его функциональных помещениях.
Стоимость индивидуального проекта начинается от 20 BYN за 1 м².
Конструктивный проект
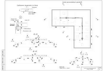
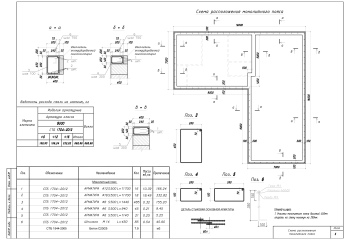
Конструктивный проект (КР) представляет собой проект с детальной проработкой и расчетом конструктивных элементов дома, таких как фундамент, перекрытия, крыша и другие. В проект включены все необходимые расчеты, чертежи и развертки, которые необходимы подрядчикам для выполнения строительных и монтажных работ.
Конструктивный проект разрабатывается после завершения архитектурного раздела.
Состав конструктивного проекта может включать следующие разделы:
- КЖ - конструкции из железобетона. Это расчеты всех несущих элементов дома, выполненных из железобетона: фундамент, перекрытия, лестница, плоская крыша и другие.
- КД - конструкции из дерева. Расчет всех элементов дома из дерева: перекрытия, стропильная система, каркасные конструкции и прочее.
- КМ - конструкции из металла. Расчет элементов дома из металла: лестница, навесы, террасы и другие.
В конструктивный проект могут входить следующие чертежи:
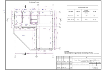
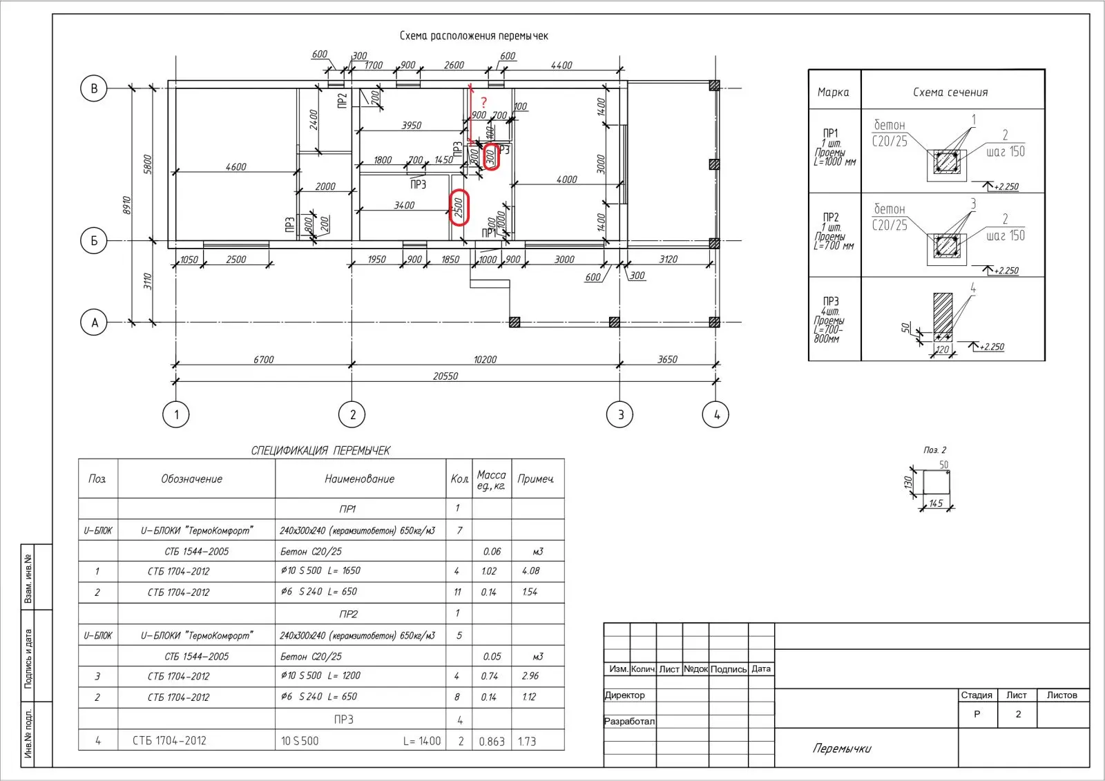
- План фундамента с детальными расчетами;
- План перекрытий с детальными расчетами;
- План кровли с детальными расчетами;
- Спецификации;
- Узлы.
При разработке архитектурного и конструктивного проектов вы получите полный и детализированный проект для строительства дома, с необходимой информацией для строителей.
Кроме того, мы разрабатываем конструктивные проекты для отдельных типов конструкций:
- Фундамент
- Перекрытия
- Крыша
