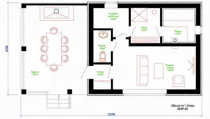
РЛ-788 Банный комплекс 12.25*6.20 м.
РЛ-788 Банный комплекс 12.25*6.20 м.
Цена строительства от: 89 000 BYN
  • Общая площадь:

    64 м2

  • Срок строительства: до 4 месяцев, с отделкой до 7 месяцев
    Описание

    В стоимость базового строительства входит работы и материалы : АР (архитектурный проект)   фундамент свайно-ростверковый (геология ???)   , ввод и разводка  канализации, водопровод (гильза) , электроэнергия (гильза) ,   наружные стены из газосиликатного  блока 300 мм, перегородки 120 м,  крыша  метало-  черепица «Монтерей» толщина металла 0,5 мм , межэтажное перекрытие деревянные балки 200мм  с утеплением 200 мм.

     

    Гарантия на выполненные работы 48 месяцев. Предлагаем строительство с отделкой под ключ.

     

    При строительстве с отделкой под ключ предлагаем визуализацию всех помещений.

    Визуализация помогает заказчику определиться, подходит ли ему этот вид отделки интерьера или экстерьера  или это требует доработки. Это позволит сэкономить время на переделки в строительстве, так как модель проще переделать, чем ремонт.

    Наши преимущества
    Мы строим дачные дома, коттеджи , бани под ключ и берем на себя
    полный комплекс строительных услуг

    Создаем проект дома, либо выбираете из готовых

    Проводим геодезию участка

    Возводим фундамент

    Возводим стены и перекрытия

    Кровельные работы

    Фасадные работы

    Инженерные работы

    Получистовая отделка

    Чистовая отделка

    Мы занимаемся строительством под ключ
    дачных домов, коттеджей , бань,
    в любой ценовой категории,
    в любой точке Республики Беларусь!
    По вашему желанию разработаем,
    утвердим проект, который вам понравится
    и построим все под ключ.

    Контакты

    • г. Минск, ул. Якубова 10
    • +375 (44) 576-24-99
    Оставить заявку
    Заказать консультацию
    Нажимая на кнопку, вы даете согласие на обработку своих персональных данных