- Главная
- Проекты домов, бань
- Строительство спа-комплексов
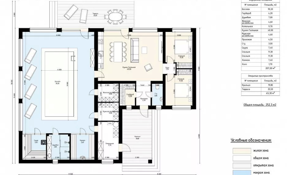
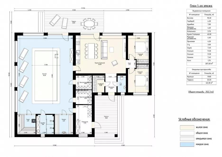
- КС-99. Банный комплекс с бассейном 19.7* 18 метров
бассейн, русская парная, турецкий хамам, 1 сан-узел,, гостиная, две спальни, раздевалки мужская - женская:
В стоимость базового строительства входит работы и материалы
АР (архитектурный проект) фундамент свайно- ростверковый (геология) , ввод и разводка канализации, водопровода(гильза), электроэнергии (гильза) наружные стены из газосиликатного блока (300мм, внутренние и перегородки (120мм) , бетонные черновые полы, крыша монолитная железобетонная 200 мм с утеплением 200 мм пеноплекс- парапет кирпич- стяжка с разуклонкой .
В стоимость не включена чаша бассейна — по согласованию чаша бассейна из монолитного железобетона или композитная чаша бассейна.
В По согласованию возможно замена стен на керамзитобетонные стены или железобетонный каркас с заполнением любым видом блоков.
При строительстве с отделкой под ключ выполним визуализацию всех помещений для точного расчета стоимость работ и материалов.
Гарантия на выполненные работы 48 месяцев. Предлагаем строительство с отделкой под ключ.
полный комплекс строительных услуг
Создаем проект дома, либо выбираете из готовых
Проводим геодезию участка
Возводим фундамент
Возводим стены и перекрытия
Кровельные работы
Фасадные работы
Инженерные работы
Получистовая отделка
Чистовая отделка
дачных домов, коттеджей , бань,
в любой ценовой категории,
в любой точке Республики Беларусь!
утвердим проект, который вам понравится
и построим все под ключ.






