- Главная
- Проекты домов, бань
- Строительство спа-комплексов
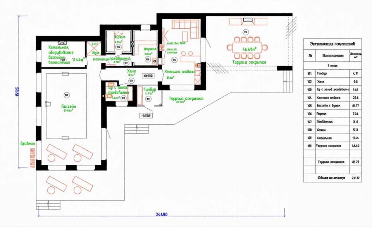
- Н-55. СПА-комплекс с бассейном 15.2* 24.5 метров.
чаша бассейна, комната отдыха, русская парная, помещение для хамам, сан-узел.:
В стоимость базового строительства входит работы и материалы
АР (архитектурный проект) фундамент свайно- ростверковый (геология) , ввод и разводка канализации, водопровода(гильза), электроэнергии (гильза) наружные стены из газосиликатного блока (300мм, внутренние и перегородки (120мм) , бетонные черновые полы, крыша металлочерепица «Супер-монтерей» толщина металла 0,5 мм , межэтажное перекрытие деревянные балки 200 мм с утеплением 200 мм.
В стоимость не включена чаша бассейна — по согласованию чаша бассейна из монолитного железобетона или композитная чаша бассейна.
В По согласованию возможно замена стен на керамзитобетонные стены или железобетонный каркас с заполнением любым видом блоков.
Для более точного выбора и согласования отделочных работ и материалов мы предлагаем в нашей компании сделать 3D Визуализацию вашего СПА комплекса. Таким образом вы получите максимально точное представление о предстоящих работах и максимально точно рассчитаем весь бюджет с полной отделкой.
Визуализация помогает заказчику определиться, подходит ли ему этот вид отделки интерьера или экстерьера или это требует доработки. Это позволит сэкономить время на переделки в строительстве, так как модель проще переделать, чем ремонт.
Гарантия на выполненные работы 48 месяцев. Предлагаем строительство с отделкой под ключ.
полный комплекс строительных услуг
Создаем проект дома, либо выбираете из готовых
Проводим геодезию участка
Возводим фундамент
Возводим стены и перекрытия
Кровельные работы
Фасадные работы
Инженерные работы
Получистовая отделка
Чистовая отделка
дачных домов, коттеджей , бань,
в любой ценовой категории,
в любой точке Республики Беларусь!
утвердим проект, который вам понравится
и построим все под ключ.






