- Главная
- Проекты домов, бань
- Строительство спа-комплексов
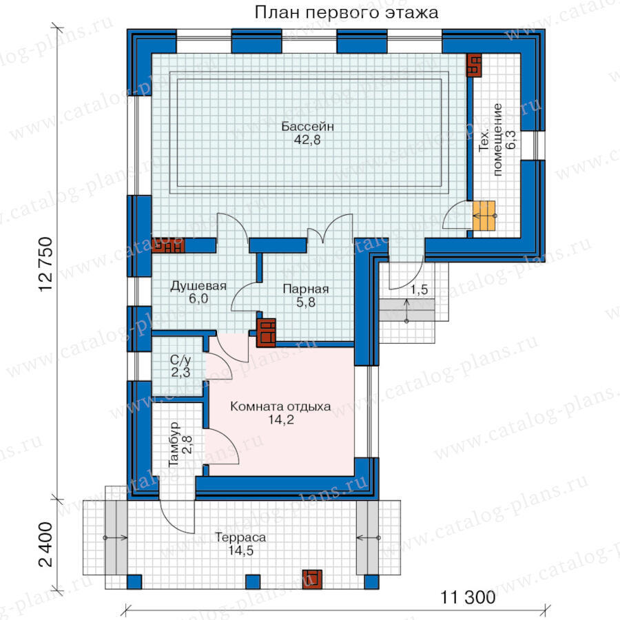
- В-74 СПА-комплекс с бассейном и сауной 15,2м*11.3 м.
бассейн:
18 кв метров
комната отдыха:
14.2 кв метров
парная:
5.8 кв метров
сан-узел, душевая ,тамбур.:
терраса :
14.5 кв метров
В стоимость базового строительства входит работы и материалы
АР (архитектурный проект) фундамент свайно- ростверковый (геология) , ввод и разводка канализации, водопровода(гильза), электроэнергии (гильза) наружные стены из газосиликатного блока (300мм, внутренние и перегородки (120мм) , бетонные черновые полы, крыша металлочерепица «Супер-монтерей» толщина металла 0,5 мм , межэтажное перекрытие деревянные балки 200 мм с утеплением 200 мм. Кирпичные столбы без отделки.
В стоимость не включена чаша бассейна — по согласованию чаша бассейна из монолитного железобетона или композитная чаша бассейна.
В По согласованию возможно замена стен на керамзитобетонные стены или железобетонный каркас с заполнением любым видом блоков.
При строительстве с отделкой под ключ выполним визуализацию всех помещений для точного расчета стоимость работ и материалов.
Гарантия на выполненные работы 48 месяцев. Предлагаем строительство с отделкой под ключ.
полный комплекс строительных услуг
Создаем проект дома, либо выбираете из готовых
Проводим геодезию участка
Возводим фундамент
Возводим стены и перекрытия
Кровельные работы
Фасадные работы
Инженерные работы
Получистовая отделка
Чистовая отделка
дачных домов, коттеджей , бань,
в любой ценовой категории,
в любой точке Республики Беларусь!
утвердим проект, который вам понравится
и построим все под ключ.



