СНК-88 СПА-комплекс с бассейном и террасой 15*17 м.
СНК-88 СПА-комплекс с бассейном и террасой 15*17 м.
Цена строительства от: 195 000 BYN
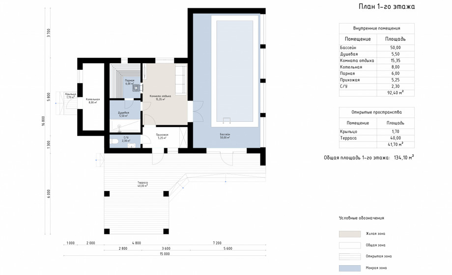
  • Общая площадь:

    135 м2

  • комната отдыха, сауна, сан-узел, котельная :

  • Срок строительства: до 4 месяцев, с отделкой до 12 месяцев
    Характеристики
  • комната отдыха, сауна, сан-узел, котельная :

  • Описание

     

    В стоимость базового строительства входят работы и материалы :АР (архитектурный проект)  фундамент свайно- ростверковый  (геология) , ввод и разводка канализации, водопровода(гильза), электроэнергии (гильза) наружные стены из газосиликатного блока (300мм,  внутренние и перегородки (120мм) , бетонные черновые полы,  крыша  монолитная железобетонная 200 мм с утеплением 200 мм пеноплекс- парапет кирпич- стяжка с разуклонкой  .

     

    В стоимость не включена чаша бассейна — по согласованию чаша бассейна из монолитного железобетона или  композитная чаша бассейна.

    В По согласованию возможно замена стен на керамзитобетонные стены или железобетонный каркас с заполнением любым видом блоков.

    При строительстве с отделкой под ключ выполним визуализацию всех помещений для точного расчета стоимость работ и материалов.

     

    Визуализация помогает заказчику определиться, подходит ли ему этот вид отделки интерьера или экстерьера  или это требует доработки. Это позволит сэкономить время на переделки в строительстве, так как модель проще переделать, чем ремонт.

     

     

      Гарантия на выполненные работы 48 месяцев. Предлагаем строительство с отделкой под ключ. 

    Наши преимущества
    Мы строим дачные дома, коттеджи , бани под ключ и берем на себя
    полный комплекс строительных услуг

    Создаем проект дома, либо выбираете из готовых

    Проводим геодезию участка

    Возводим фундамент

    Возводим стены и перекрытия

    Кровельные работы

    Фасадные работы

    Инженерные работы

    Получистовая отделка

    Чистовая отделка

    Мы занимаемся строительством под ключ
    дачных домов, коттеджей , бань,
    в любой ценовой категории,
    в любой точке Республики Беларусь!
    По вашему желанию разработаем,
    утвердим проект, который вам понравится
    и построим все под ключ.

    Контакты

    • г. Минск, ул. Якубова 10
    • +375 (44) 576-24-99
    Оставить заявку
    Заказать консультацию
    Нажимая на кнопку, вы даете согласие на обработку своих персональных данных